Dear friends,
We would love to hear about your current BioNova® projects. Please send Ryan, ryan@bionovanaturalpools.com, any information and pictures of your projects and we will gladly put them in the newsletter to share with all of the dealers. Thank you and we hope to see your inputs soon!
Here’s what’s happening at BioNova® Natural Pools North America…
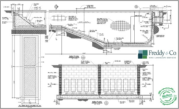
Freddy and Company Landscape Busy Building NSPsOur BioNova® Dealer in Connecticut, Freddy and Bruno from Freddy and Company Landscape, continue to be busy, and are currently in the process of building another NSP.
This project will be a 14 ft. x 55 ft. design with a small shelf and steps that will lead into the shallow end. Depth configuration will be a 3.5 foot shallow end down to an 6.5 foot deep end. The deep end will also include a 4 foot deep swim out bench and step.
This NSP will be filtered with two 10 tube BF4s. Both BF4s, each containing its own filter manifold and bubble/backwash manifold have been constructed and is awaiting Freddy’s team to pick them up and take delivery of them in Hackettstown including 20 tubes.



Stay Safe and Healthy.
We hope you all continue to stay healthy during these trying times and wish all of our BioNova® Dealers our best to you and your families.

Questions, Concerns, Thoughts
As always, we encourage you to contact us and share your thoughts, questions, and concerns with BioNova®. We are available to assist you in any way we can. Feel free to email me directly with photos, project updates, testimonials, etc., and we’ll include them in an upcoming Newsletter.
Respectfully,
Ryan Harmer
BioNova® Natural Pools
ryan@bionovanaturalpools.com
609-318-4707

